Trilocale in vendita

Caselle Lurani, Via Francesco Cusani - Calvenzano
€ 130.000
3 locali 3 locali
100 Mq 100 Mq
1 bagno 1 bagno

Trilocale in vendita

Caselle Lurani, Via Francesco Cusani - Calvenzano

Descrizione annuncio

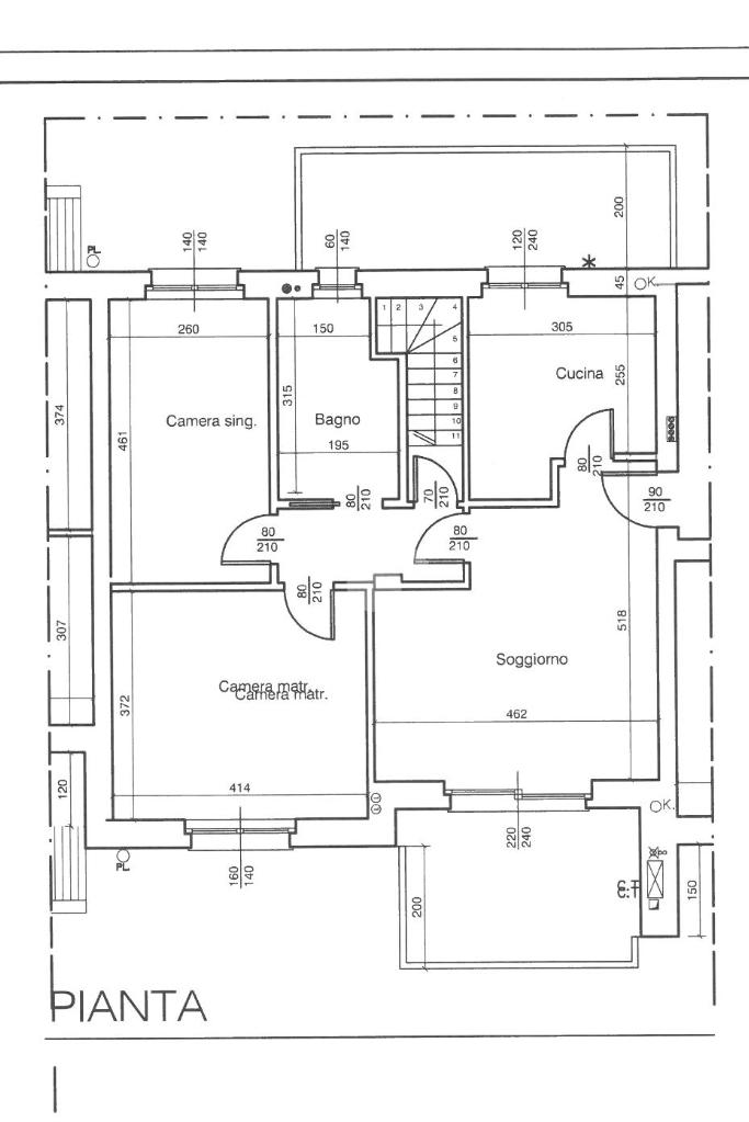
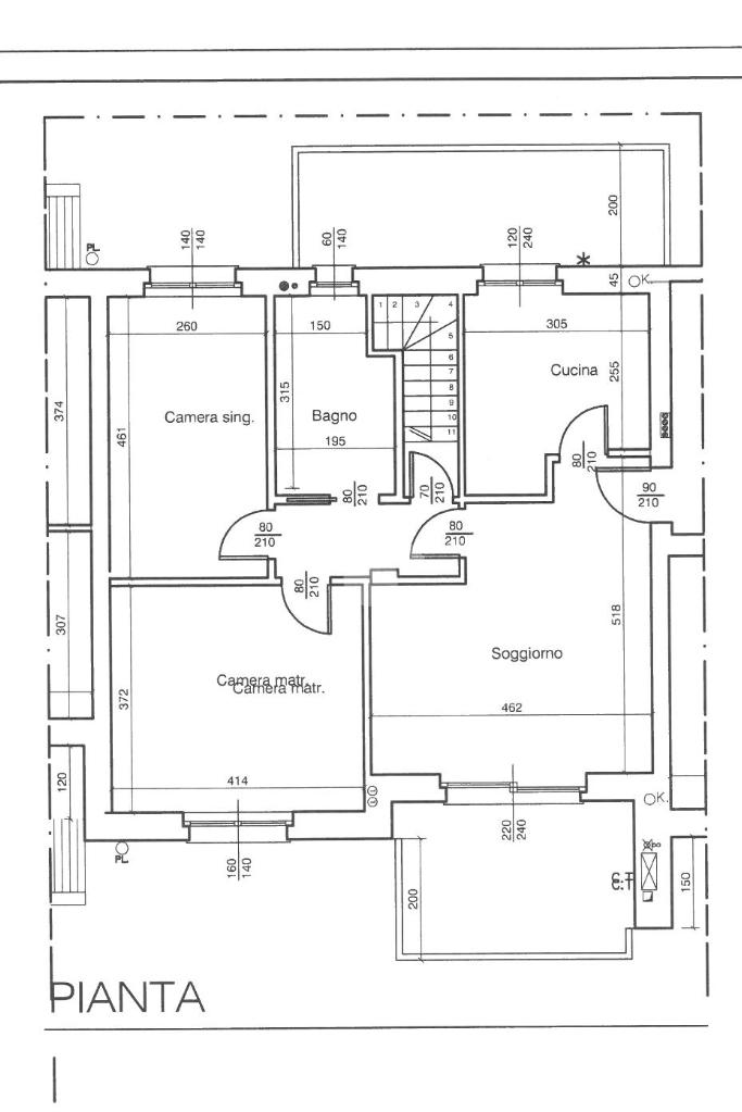
CASELLE LURANI: in recente palazzina rifinita esternamente con mattoncino a vista proponiamo appartemento di tre locali con giardino privato, disposto su due livelli.

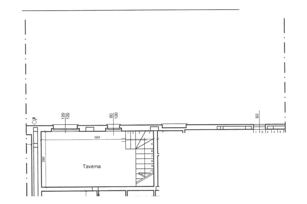
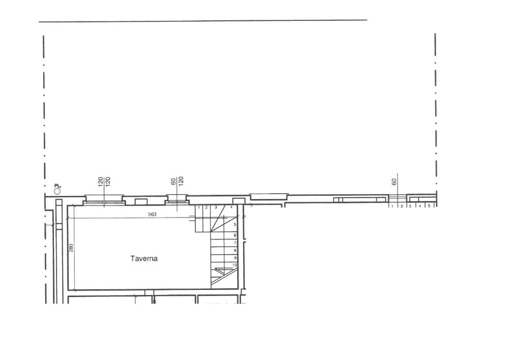
La casa ha ingresso sul soggiorno, con affaccio sul balcone. La cucina è abitabile e anche questa ha affaccio su un ampio balcone. Il bagno è finetrato e dotato di vasca. Ci sono poi le due camere, una singola e una matrimoniale. Nel disimpegno c' è una scala che conduce al piano inferiore, dove c'è la taverna, con accesso al giardino privato.

Il riscaldamento è autonomo.

Completa la proprietà il box.

Mostra tutto

Nelle vicinanze

Trasporto pubblico Trasporto pubblico
Trasporto pubblico
250 m
Ricariche auto elettriche Ricariche auto elettriche
BeCharge Marudo Via Roma
2,1 Km
BeCharge Municipio di Castiraga Vidardo
2,2 Km
Scuole Scuole
Scuola Primaria Leonardo Da Vinci
2,0 Km
Scuole
2,0 Km
Scuola elementare Guglielmo Marconi
2,1 Km
Scuola Secondaria di I Grado
2,1 Km
Scuola elementare Santa Francesca Cabrini
2,3 Km
Farmacia Farmacia
Farmacia Comunale
2,0 Km
Farmacia
2,3 Km
Negozi Negozi
Negozi
2,0 Km
Il Fornaio
2,4 Km
Bar Bar
Bar
2,0 Km
Bar Trattoria Corona
2,0 Km
Jolly Bar
2,2 Km
Ristoranti Ristoranti
Osteria dei Talenti
440 m
La Gallina Felice
3,0 Km
Mostra tutto

Caratteristiche

Rif.:
61113953
Piano:
1 di 2 (Piano basso)
Box:
1
Balconi:
2
Camere da letto:
2
Arredamento:
Assente
Mostra tutto
Prezzo Prezzo
€ 130.000
Rata mutuo Rata mutuo
€ 601 / mese
Spese annue Spese annue
€ 900
Proponi il tuo prezzoProponi il tuo prezzo
Immobile valutato con TecnoValore

Classe Energetica

D
D
D
D
D
D
D
D
D
EP globale non rinnovabile:
118.28 kW h/m² anno
EP invernale del fabbricato:
EP estiva del fabbricato:
Anno di costruzione:
2011
Riscaldamento:
Autonomo
Tipo impianto:
A radiatori
Tipo alimentazione:
Metano

Ti interessa visionare l'immobile?

Fissa un appuntamento  Fissa un appuntamento

Richiedi informazioni

* Questi campi sono obbligatori

Calcola il tuo mutuo

Semplice e senza impegno
Anticipo

( % )
Mutuo

( % )

pochi semplici passi

inserisci i tuoi dati
Questionario completato
Grazie per aver richiesto un appuntamento senza impegno con un nostro Consulente del Credito e Assicurativo.

Hai inserito correttamente tutti i dati necessari e a breve riceverai una e-mail con un link da convalidare per inviare i tuoi dati.
Affiliato
Studio Melegnano Srl
Via P. Frisi , 20/22 20077 Melegnano (MI)

Il nostro staff


  • Mauro Delmonte
    Affiliato

  • Simona Peccati
    Responsabile

  • Lidia Franchi
    Coordinatrice
Via P. Frisi , 20/22 20077 Melegnano (MI)
Zona: Melegnano
Mostra su mappa
Orari: dal lunedì al venerdì 09.00 - 12.30 / 15.00 - 19.30 sabato chiusura ore 17.00
Affiliato
Studio Melegnano Srl
Via P. Frisi , 20/22 20077 Melegnano (MI)

2025 Tecnocasa Franchising S.p.A. - P. IVA 08365160152 - Via Monte Bianco 60/A 20089 Rozzano (MI). Ogni agenzia ha un proprio titolare ed è autonoma. Privacy policy | Policy utilizzo | Cookie policy